Beschreibung:
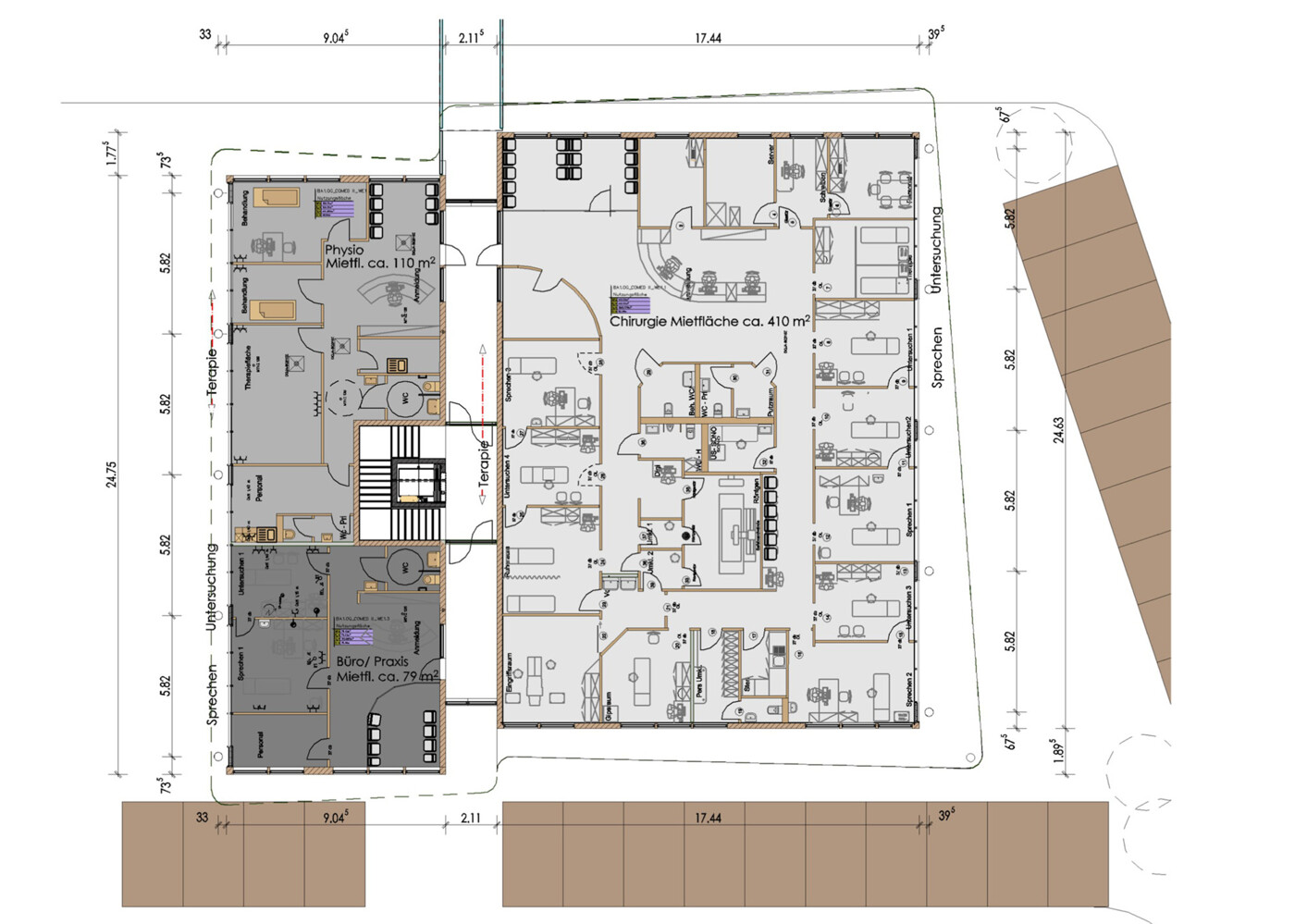
Das geplante Neubauprojekt, zentral in Bous in moderner Bauweise lässt 6 Mieteinheiten, aufgeteilt in Erd-/und Obergeschoss entstehen.
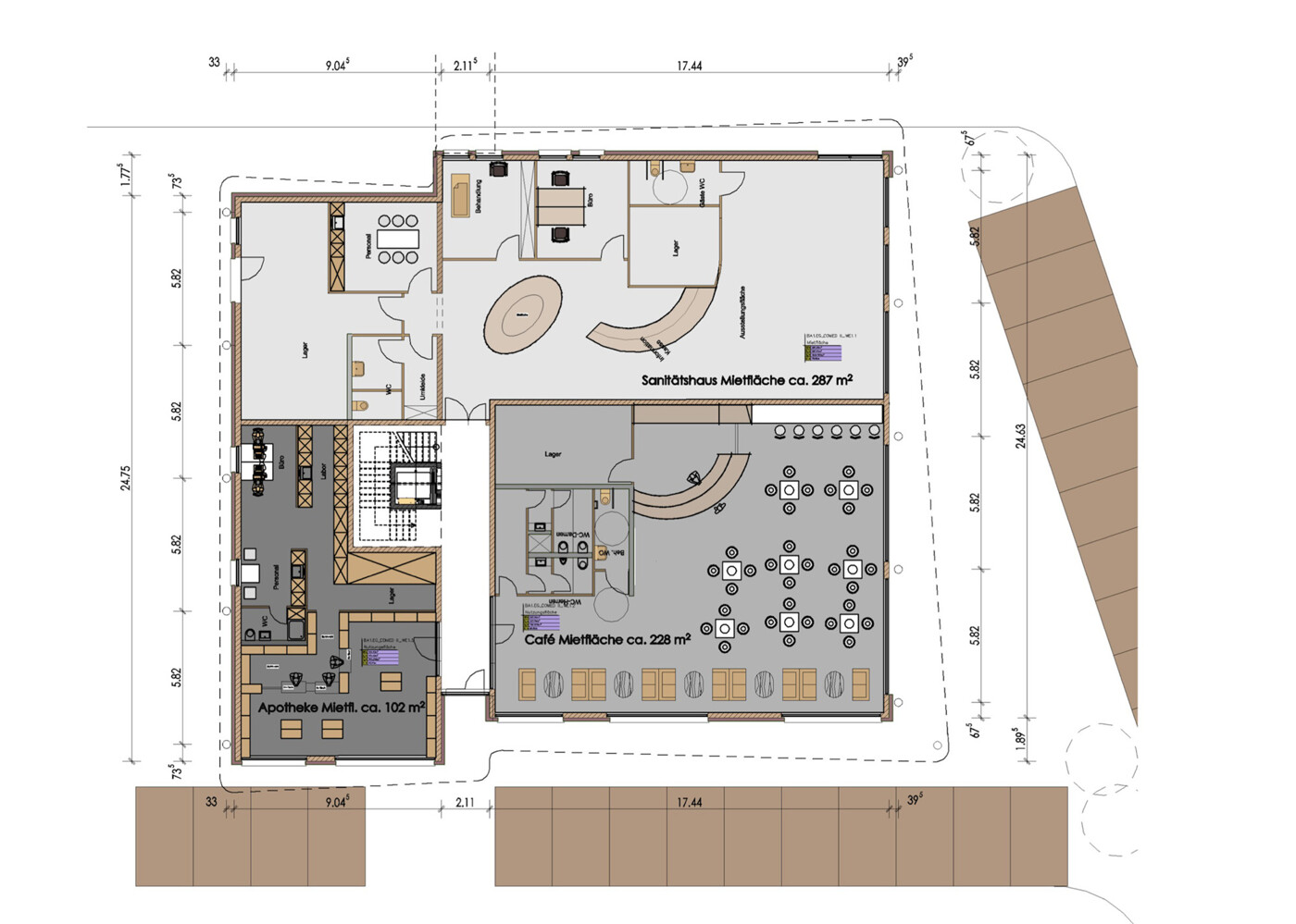
Das Erdgeschoss aufgeteilt in 3 Mietflächen mit jeweils 102 m², 287 m² und 228 m² lässt Wünsche wahr werden.
Die Flächen würden sich ideal als z.B. Arztpraxis mit nebenanliegender Apotheke, Sanitätshaus oder auch Krankengymnastik eignen. Auch wäre ein gemütliches Café ideal umsetzbar und sicherlich an diesem Standort sehr lukrativ.
Ihr Traumstandort können Sie mieten für 20€/m².
Das Obergeschoss wird barrierefrei zugänglich sein und ebenfalls über 3 geplanten Einheiten verfügen. Die Mietflächen verfügen jeweils über ca. 79m², 110m² sowie 410m².
Die Räumlichkeiten würden sich ideal als Büro, Praxis und Chirurgie eignen.
Natürlich sind Ihren Vorstellungen und geplanten Umsetzungen keine Grenzen gesetzt, gerne können Sie sich hier auf Ihrer geeigneten Fläche verwirklichen.
Die Obergeschossflächen können Sie für 17,50€/m² anmieten.
Zusätzlich werden genügend freie Parkplätze zur Verfügung stehen.
Die Außenanlagen werden ansprechend gestaltet.
Lagebeschreibung:
Bous ist eine Gemeinde im Landkreis Saarlouis, direkt an der Saar gelegen und liegt zwischen Saarlouis und Saarbrücken.
Bous ist optimal über die B51 sowie A620 unkompliziert erreichbar. Der geprägte Durchgangsverkehr sowie die zahlreichen Einkaufsmöglichkeiten/ Geschäfte wie Dehner, Bauhaus, Möbelgeschäfte, Drogerien, Ärzte, Schulen, Freizeitaktivitäten uvm. sind ideal für Ihren Firmenstandort gelegen.
Ausstattung:
Energieausweis:
- Energieausweis:
- es besteht keine Pflicht!
- Energieausweis gültig bis:
- 0000-00-00
Ausstattungsbeschreibung:
Fazit:
- Beste Lage zum Arbeiten
- Zentral gelegen
- gute Sichtbarkeit
- ideale Infrastruktur
- Modernes arbeiten





